🏡 Агенция за недвижими имоти ГОЛД ИМОТИ има удоволствието да Ви представи двустайни и тристайни апартаменти в новострояща се сграда в кв.Остромила.
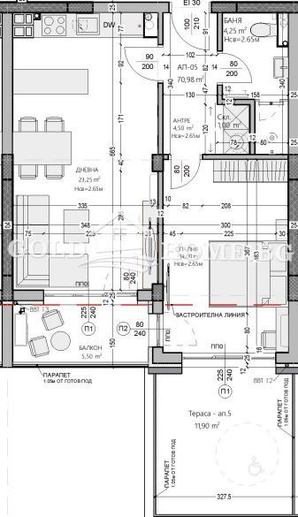
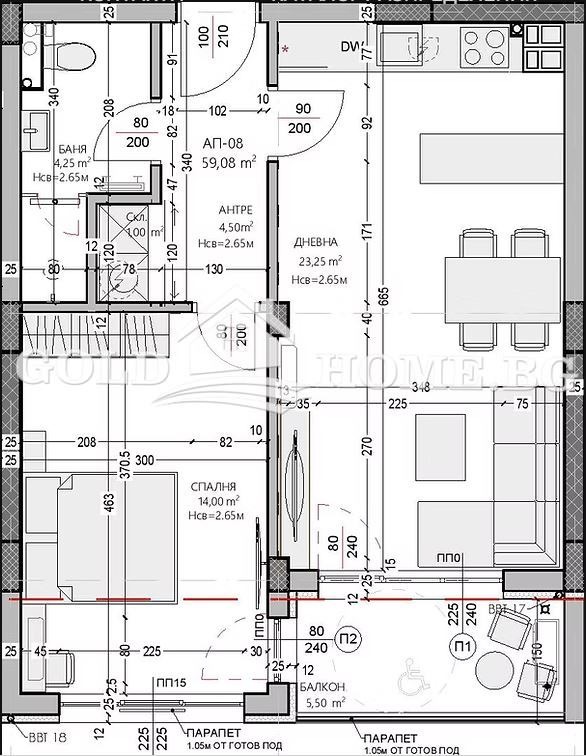
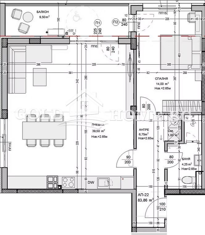
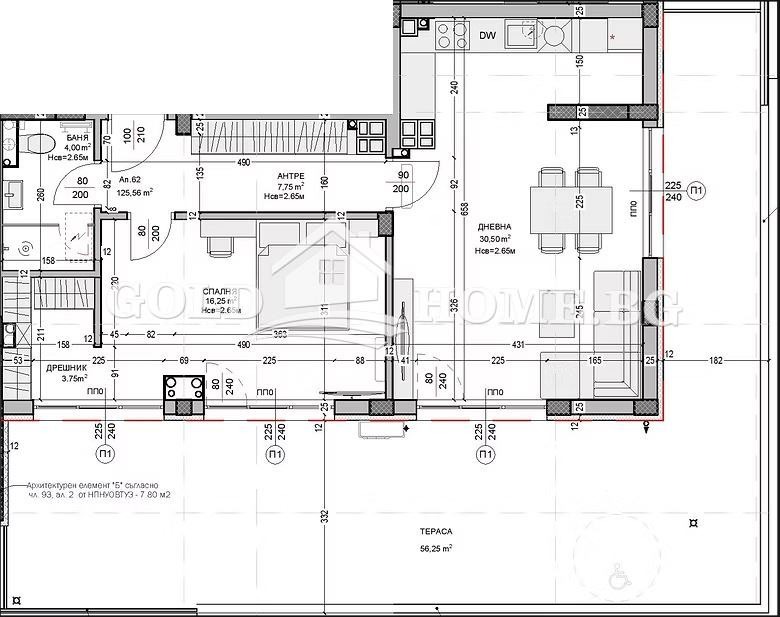
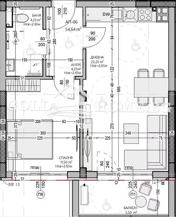
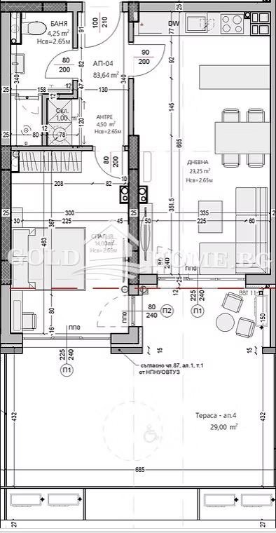
✅ Двустайните апартаменти се състоят от: входно антре, всекидневна с кухненски бокс, спалня, баня с тоалетна и тераса.
✅ Можем да предложим следните модули:
-63,75 кв.м - 79 680 евро
-66,15 кв.м - 82 687 евро
-68,93 кв.м - 86 158 евро
-82,81 кв.м - 103 512 евро
-92,75 кв.м - 115 932 евро
-97,84 кв.м - 122 295 евро
-137,11 кв.м - 171 389 евро
Характерики и предимства:
📍 Апартаментите ще бъдат издавани по БДС: шпакловка и замазка, ел. инсталация до ключ, ВиК до тапа, външна блиндирана врата, висок клас ПВЦ дограма.
📍 Сградата ще бъде оградена по целия периметър. Достъпът ще е ограничен посредством бариера.
📍 Интегрирана система от камери за сигурност на собствениците.
📍 Общи части с кътове за отдих и детска площадка.
📍 Разсрочени схеми на плащане.
📍 Пусков срок: 2028г.
🚗 Има възможност за покупка на паркоместа и гаражи.
📍 Локация: В непосредствена близост до сградата ще намерите всичко необходимо за комфортния живот от ресторанти и супермаркети, до училища, паркове, спортни зали, детски градини, офис на Спиди, офис на Еконт и бензиностанции.
➡️ ГОЛД ИМОТИ предлага безплатно професионално кредитно посредничество чрез Credit Center:
- Изготвяне на оферти от водещи банки
- Най-добри условия, съобразени с вашия профил
- Без излишни разходи и време за посещения на различни банкови клонове.
➡️ Не пропускайте! За повече информация и огледи, свържете се с нас: 0896 706 299, 089 427 4966, 0899 125 189. Вашият нов дом ви очаква!
Виж всички обяви в gold_imoti.bazar.bg или тук







