Предлагаме за продажба просторен двустаен апартамент с площ от 81 кв.м., разположен в кв. Левски Г, в една от най-развиващите се зони на София. Жилището се намира в нова сграда с предстоящ Акт 16 през декември 2026 г.
📍 Локация:
Имотът е с перфектна локация, в непосредствена близост до:
строяща се метростанция
големи хранителни магазини
аптеки и заведения
детски градини и училища
зони за отдих и паркове
на няколко минути от Летище София
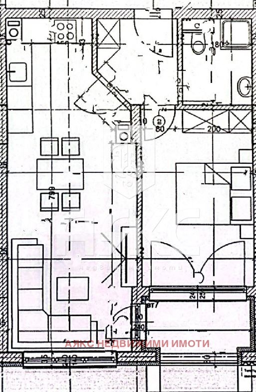
🛋 Разпределение:
Просторен хол с кухня и трапезария
Спалня
Баня с тоалетна
Тераса
Жилището е проектирано с функционално разпределение, което предлага удобство и комфорт, както за живеене, така и за инвестиция с цел отдаване под наем.
Не пропускайте възможността да станете собственик на имот в една от най-перспективните части на столицата!
За повече информация и за организиране на оглед, не се колебайте да се свържете с нас. Ще се радваме да ви предоставим всички детайли и да уговорим удобен час за посещение на имота!
Отговорен брокер: Йоан Мариянов
0886093992
Виж всички обяви в ajaximoti.bazar.bg или тук







