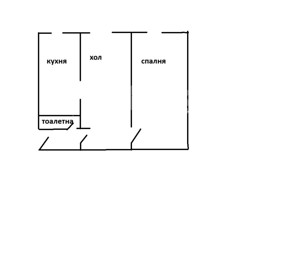
Разпределение: входно антре, кухня, хол с преход към спалня, тоалетна.
Мазе с площ 9.45 кв.м и таван с площ 10.60 кв.м, етаж 2 от 3 .
Отопление на ТЕЦ.
За ремонт!
Красна поляна 1 на границата със Западен парк, ул. Братин дол, блок 107, в близост до градски транспорт.
Триетажна сграда с гредоредна конструкция, прилични общи части, заключващ се вход.
Предимства: саниран апартамент , мазе с площ 9.45 кв.м. и таван с площ 10.60 кв.м.
Етаж 2 от 3 .
С ключ
Обади се сега и цитирай този код 660586
Виж всички обяви в imoteka.bazar.bg или тук







