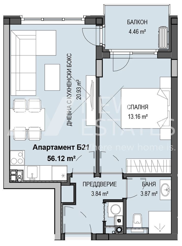
New Estates представя на Вашето внимание двустаен апартамент в луксозна и функционална жилищна сграда, ситуирана в Южната част на град София. Локацията е изключително комуникативна с осигурен бърз достъп, както до административната част на града, така и до редица културни, спортни и обществени зони. Сградите са хармонично вписани между парк Витоша и градската среда на столицата. Поддръжката ще се осигурява от професионална компания, отговаряща за цялостния процес по почистване на общи части и фоайета, асансьори, озеленяване и аранжиране на парковата среда, сметоизвозване и снегопочистване. Ще бъде изградена съвременна и модерна детска площадка в безопасна среда без автомобили. Паркирането е решено на две нива, като има възможност за избор на единични или двойни гаражи и паркоместа.
Виж всички обяви в newestates.bazar.bg или тук
        
       
         
         
         
         
         
         
             
             
             
             
             
            






