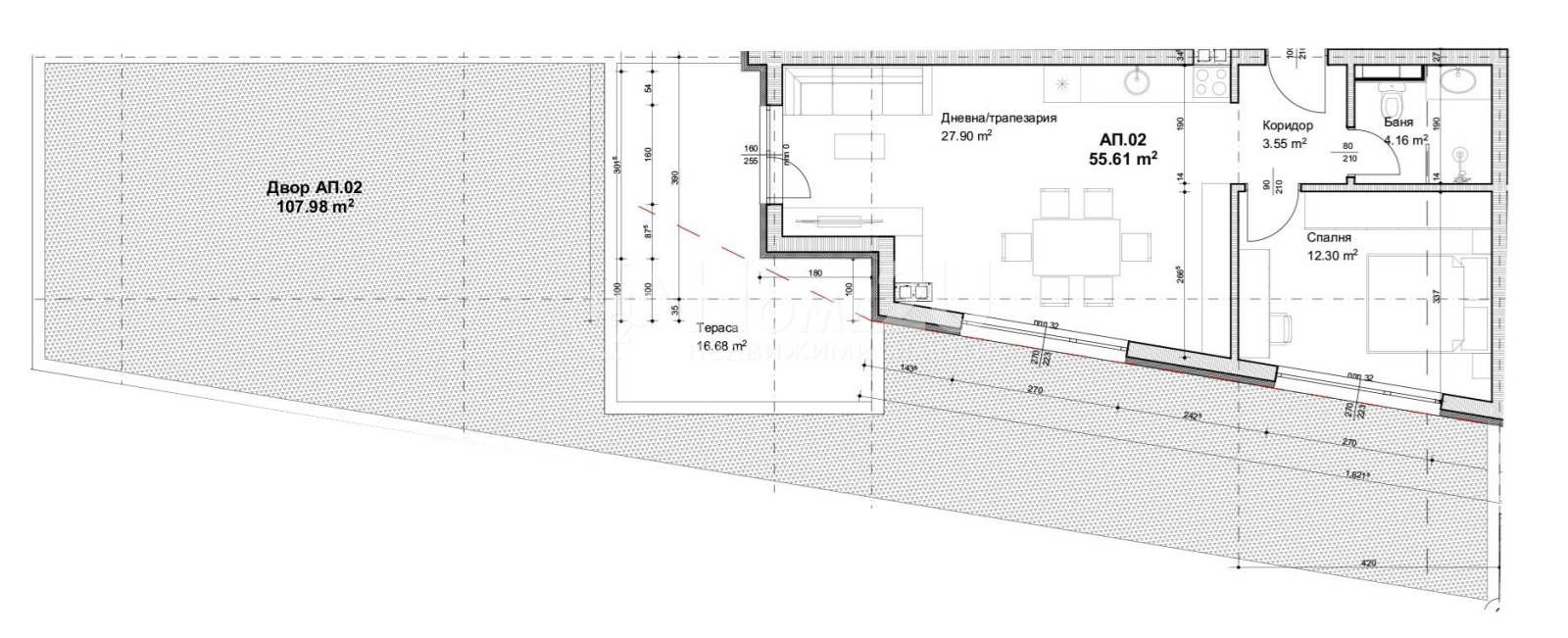
Представяме Ви 2-стаен апартамент на 1-ви от 3 жилищни етажа със следното функционално разпределение: коридор, просторна дневна с кухненски бокс, спалня, баня с тоалетна и веранда с огромен двор. Жилището се намира в луксозна бутикова сграда, в един от най-елитните райони на София. Сградата се отличава с висок клас строителство, съвременен дизайн и разполага с ограничен брой двустайни, тристайни и четиристайни апартаменти с функционални разпределения проектирани за стилен и спокоен живот. Сградата се намира на само 30 метра от спирка на градския транспорт, в близост до големи супермаркети и на под 10 минути от Paradise Center осигурявайки бърза връзка с ключови точки в столицата. Ако си търсите своя мечтан дом в елитен квартал в София, моля обадете се сега и цитирайте: 129985
Виж всички обяви в home2umontevideo.bazar.bg или тук







