БЕЗ комисиона от Купувача!
Модерна и съвременна жилищна сграда, в тихата и комуникативна част на кв. Банишора.
Сградата разполага с 20 апартамента, единични и двойни гаражи и открити паркоместа.
*Настоящ етап: получен акт 14 и чл.181
Очакван Акт 16 - м. март 2026 год.
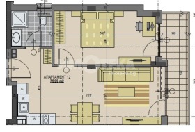
Представяме ви: Апартамент 12 с площ 75,99/ЗП - 63,68/кв.м, находящ се на 4-ти жилищен етаж и следното разпределение: Дневна с кухненски модул, спалня, с обща тераса и санитарно помещение.
Локация - ширик център - в непосредствена близост до: парк Алжир, хотел Рамада, Централна жп и автогара София.
Конструкцията на сградата е монолитна, стоманобетонна.
Светлата височина на жилищните етажи е 2.70м.
Луксозно изпълнение на общите части.
Модерно фасадно решение, 120 мм топлоизолационен пакет.
Качествена 7-камерна PVC дограма с троен стъклопакет.
Отоплението и БГВ са предвидени за централен ТЕЦ. Изградена тръбна мрежа за подово отопление и монтирани алуминиеви радиатори.
Домофонна инсталация и контрол на достъпа.
АПАРТАМЕНТИ, ЗАВЪРШЕНИ ДО КЛЮЧ!
На пешеходно разстояние - парк , Централна жп и автогара, метро станция, разнообразен обществен транспорт до всяка точка на Столицата, болници, магазини, плувен басейн и фитнес и много други удобства, за вашето ежедневие.
Гъвкава схема на плащане.
Обади се сега и цитирай този код 554837
Виж всички обяви в imoteka.bazar.bg или тук







