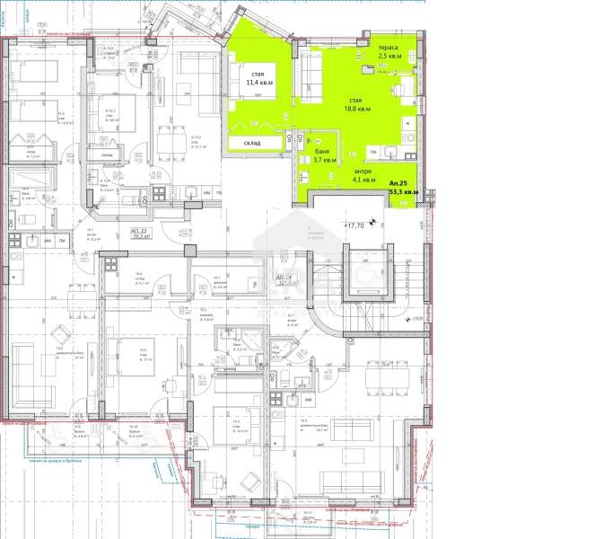
Жилището е разположено на 7-ми от 8 етажа, в чисто нова тухлена сграда, пред Акт 16 и разполага с 53,3 кв.м. застроена площ (62,87 кв.м. с общите части), разпределени във входно антре, дневна с кухненски бокс, уютна спалня с ниша за вграден гардероб (склад), тераса, баня с тоалетна и възможност за закупуване на подземен гараж на цена от 35 000 евро.
Апартаментът съчетава комфорт и отлична локация намира се в тиха, но комуникативна зона, с всички удобства наблизо: метро, магазини, училища, детски градини и зелени площи. Разрешението за ползване се очаква през септември, тази година.
Оферта 3304233
Виж всички обяви в eranadejda.bazar.bg или тук







