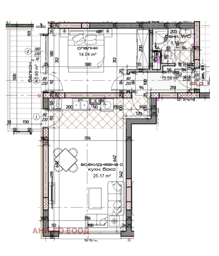
Апартаментът от 81,01кв.м. се намира на 7-ми етаж , със следното разпределение: входно антре, спалня - 14,04кв.м. , всекидневна с обособена кухненска зона -25,17кв.м., санитарно помещение, тераса - 8кв.м., складово помещение.
Имотите ще бъдат завършени по БДС на шпакловка и замазка, с блиндирана входна врата. Възможност за закупуване на закрито или открито паркомясто или гараж
Жилищният проект е разработен с мисъл за модерния начин на живот, съчетавайки , функционалност, комфорт и стил, разположен сред зелени площи и паркове във Варна.
Апартаментите предлагат светли и просторни помещения с правилни форми изпълнени с модерни технологии и висококачествени материали.
Съвременният дизайн, просторните жилищни пространства и удобствата в района правят проекта идеален избор за семейства и инвеститори.
Комплексът се намира в предпочитаният за живеене от много варненци квартал Младост. Районът предлага множество удобства, като хипермаркет, търговски центрове, училища, детски градини, поликлиника и развита транспортна инфраструктура.
Апартаментите във Варна са не само мечтан дом, но и стабилна инвестиция!
Цена:119,900 евро
За контакти брокер по офертата Генчева тел: 0896651605
Виж всички обяви в anibovarna.bazar.bg или тук







