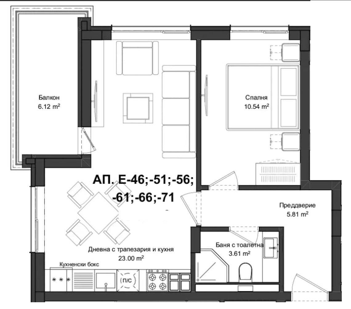
➡Апартаментът се състои от антре, дневна с трапезария и кухненски бокс, спалня, баня с тоалетна, тераса, избено помещение и е с обща площ от 70,43 кв.м.
В сградата се предлагат разнообразни по площ едностайни, двустайни и тристайни жилища.
✔Локация: Сградата е в непосредствена близост до магазин Лидл на бул. Северен
✔Строителство:
Конструкция: Монолитна, стоманобетонна;
Стени между съседни имоти -25см;
Външна Изолация - 10 см
Дограма: ПВЦ
Входни врати: Блиндирани, пожароустойчиви;
Слаботокови инсталации: Изградено окабеляване за кабелна телевизия, телефон, интернет, СОТ и звънчева и домофонна инсталация;
Отоплителна инсталация: изградени трасета за климатици;
Асансьори: електрически, шумоизолирани;
Общи части: Напълно завършени.
На партерното ниво на сградата са разположени гаражи.
Сутеренът включва подземен паркинг
Апартаментите се издават: стени-гипсова мазилка, под-замазка, ел. инсталация - до ключ, ВиК - до тапа, тераса - гранитогрес, парапети - алуминиеви/зидани.
✔Паркинг: Възможност за покупка на паркоместа и гаражи.
➡Alpha Real Estate, специализиран посредник на водещите строителни фирми, член на Националната браншова организация НСНИ. За още предложения ново строителство в гр. Пловдив посетете нашия сайт: https://alphaestate.bg
Реф. : 7127
Виж всички обяви в alphaestate.bazar.bg или тук







