'CASA ELARA' - 'Живей до морето, мечтай до звездите' е новият проект на Крес Инвест 2007 ЕООД.
Добре дошли в 'CASA ELARA'- мястото с безкрайните хоризонти под щастливата звезда ЕЛАРА, място, където ще усетите спокойствие и магия, мястото където небето среща морето.
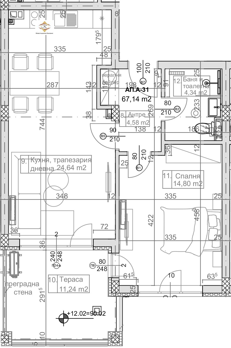
Апартамент A.-31 е разположен на четвърти етаж. Състои се от вх. антре, дневен тракт, спалня,баня-тоалет и тераса. Апартаментът е типов двустаен.
Комплексът е разположен в гориста местност с чист въздух, на пешеходно разстояние от красивите плажове и популярни туристически забележителности. Разполага с 4 дка озеленено пространство, в които ще бъдат обособени - алеи за разходка,детски кътове, зона за спорт и за отдих.
Апартаментите в CASA ELARA са прекрасна инвестиция за живеене или за отдаване под наем.
'Крес Инвест 2007' ЕООД предлага гъвкава схема на разсрочено плащане.
Виж всички обяви в vega_kres.bazar.bg или тук







