Районът е с добра комуникация в близост до училища и детски градини. Обектът се изгражда с качествени материали и добро качество на строителството.
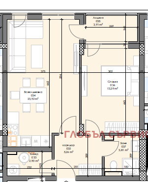
Апартаментът е с Зп- 73.12 и ЧП - 61.92.
Разпределени:
антре,
хол с кухненски кът,
спалня,
тераса,
баня и тоалетна и
килер.
Изложение:югоизток
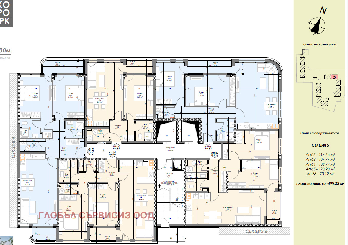
Предлагаме за продажба двустайни, тристайни и едностайни апартаменти, подземни паркоместа, гаражи и търговска част.
Гъвкави схеми на плащане.
Цената е без ДДС!.
Предлагаме еднотипен апартамент на ет.14 на цена от 125772е без ДДС.
За повече информация и огледи:0878552625,оферта 14373
Виж всички обяви в globalservices.bazar.bg или тук







