ХАРАКТЕРИСТИКИ НА ИМОТА:
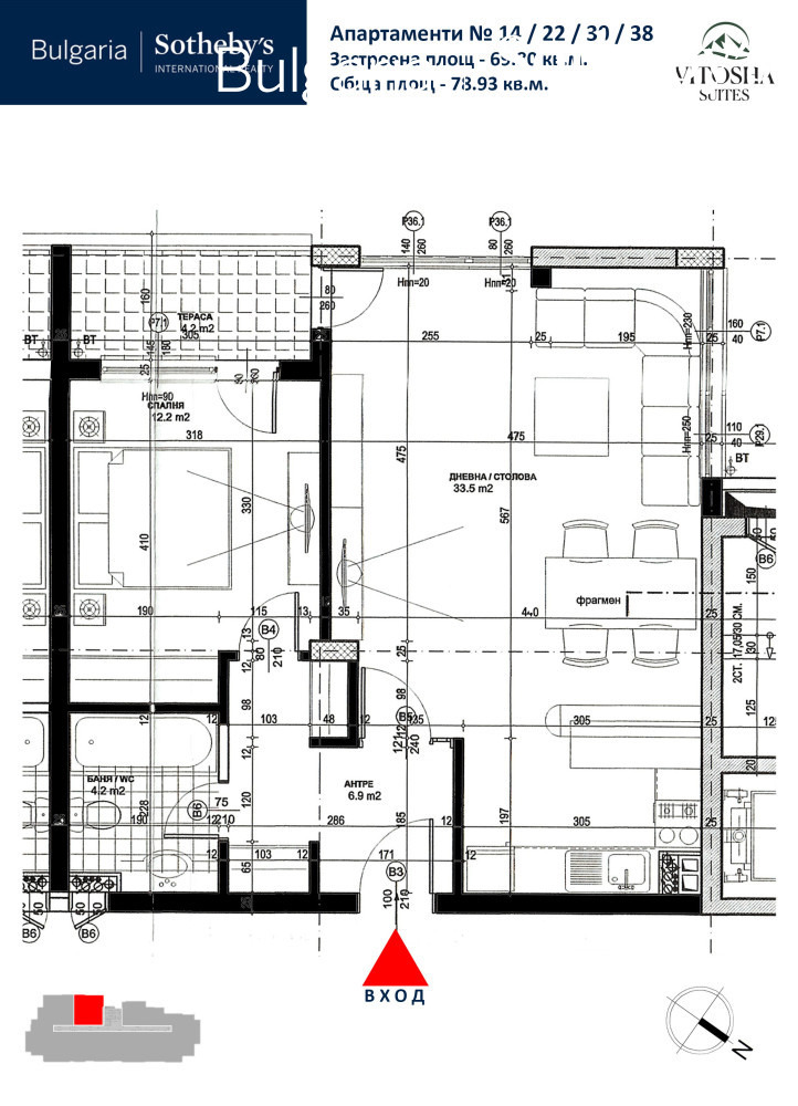
Обща площ: 78.93 кв.м.
Застроена площ: 69.80 кв.м.
Разпределение: Входно предверие, дневна с трапезария и кухненски бокс, спалня, тераса с излаз от двете помещения, баня и тоалетна.
ЗА ПРОЕКТА:
Комплексът се състои от 48 жилищни единици (студиа, двустайни и тристайни апартаменти) с функционални и внимателно проектирани към най-малкия детайл разпределения за предоставяне на максимален простор, светлина, удобство и семеен уют на своите обитатели.
Подходът към входа на кооперацията е решен посредством изцяло автоматизиран контролиран достъп и видеонаблюдение.
Общите части са проектирани от водещо интериорно студио, съгласно цялостната визия на комплекса, а избраните висококачествени материали допълват цялостния облик за ексклузивност и лукс.
СТЕПЕН НА ЗАВЪРШЕНОСТ:
ФАСАДА - Минерална мазилка и еталбонд;
ТУХЛИ Weinerberger;
ДОГРАМА - Salamаnder (троен стъклопакет PVC - немска);
АСАНСЬОР ORONA;
ОТОПЛЕНИЕ - Индивидуална газова инсталация;
АПАРТАМЕНТ -Шпакловка и замазка;
ОБЩИ ЧАСТИ - Гранитогрес, ламперия и латекс;
ПРЕДИМСТВА:
Пешеходно разстояние до единствения кабинков лифт Симеоново Алеко , връзка с Природен парк Витоша .
Директен достъп до Южната дъга на Околовръстен път, разполагаща с най-удобната пътна връзка до всички точки на града и извън него.
Чист въздух.
Вътрешна улица.
Тишина.
Сигурност.
Резервоарът Под Симеоново и ниското застрояване в района са гаранция за вечни панорамни гледки към града и планината.
Действаща детска градина.
Пешеходно разстояние до Sofia Ring Mall . Спирка на градски транспорт.
ПЕШЕХОДНО РАЗСТОЯНИЕ ДО:
Кабинков лифт Симеоново Алеко 1 мин.
Спирка за градски транспорт 1 мин.
Ring Mall 3 мин.
IKEA 3 мин.
Цената е без ДДС.
Текущ етап на строителство: Акт 14
Очаквано разрешение за ползване: 30.04.2025г.
Реф. 7216
Виж всички обяви в bulgariasir.bazar.bg или тук







