МЕСТОПОЛОЖЕНИЕ: Квартал Тракия е един от по-големите квартали в град Пловдив, който се намира в северната част на града. В Тракия има множество училища, детски градини, магазини, заведения за хранене и други удобства, които правят квартала желано място за живеене.
СТРОИТЕЛСТВО: Апартаментът се намира на 16-ти етаж, тухла.
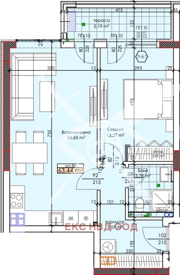
РАЗПРЕДЕЛЕНИЕ: Жилището разполага с площ от 74кв.м дневна, спалня, баня с тоалетна, склад, тераса.
СЪСТОЯНИЕ: В строеж.
Заповядайте да Ви го покажем. Използвайки нашите услуги Вие ще превърнете закупуването на новия си дом в едно приятно изживяване, ще получите персонален консултант, съдействие при кандидатстване за кредит от всички банки в България, интериорни дизайнери и екип, който да се погрижи за нужните документи по Вашата сделка. На Ваше разположение сме всеки ден, от понеделник до неделя от 09:00 до 20:00ч. Възползвайте се от безплатна консултация в наш офис, където ще ви спестим време и ще ви запознаем с всички актуални имоти в България, отговарящи на Вашето търсене. Свържете се с нас нужен Вие само кодът на имотът:274-14417
Виж всички обяви в xnvd_plovdiv.bazar.bg или тук







