МЕСТОПОЛОЖЕНИЕ: Намира се в спокойна част на района, на минути пеша от центъра на града, както и в близост до хранителен магазин и спирка на градски транспорт.
СТРОИТЕЛСТВО: Апартаментът е разположен на втори етаж, тухла.
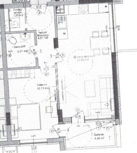
РАЗПРЕДЕЛЕНИЕ: Жилището разполага с площ 59кв.м. с общите части, състои се от хол с кухненски бокс, спалня, баня с тоалетна и тераса.
СЪСТОЯНИЕ: Апартаментът се предлага на степен до ключ, което Ви дава възможността да го устроите по Ваш вкус и да го превърнете в мечтания дом!
Заповядайте да Ви го покажем. Използвайки нашите услуги Вие ще превърнете закупуването на новия си дом в едно приятно изживяване, ще получите персонален консултант, съдействие при кандидатстване за кредит от всички банки в България, интериорни дизайнери и екип, който да се погрижи за нужните документи по Вашата сделка. На Ваше разположение сме всеки ден, от понеделник до неделя от 09:00 до 20:00ч. Възползвайте се от безплатна консултация в наш офис, където ще ви спестим време и ще ви запознаем с всички актуални имоти в България, отговарящи на Вашето търсене. Свържете се с нас на 0887779990 или на 0882009283 и цитирайте кода към имота: 65849
Виж всички обяви в xnvd_burgas.bazar.bg или тук







