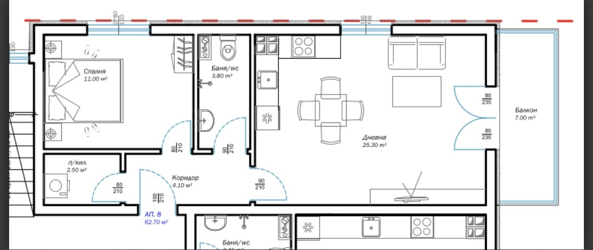
СГРАДА В СТРОЕЖ С РАЗСРОЧЕНО ПЛАЩАНЕ И КРАТКИ СРОКОВЕ!!! Адмирал Риъл Естейт недвижими имоти продава прекрасен ДВУСТАЕН апартамент състоящ се от :коридор,килер,баня с тоалет,спалня,широк дневен тракт с кухненски бокс с излаз тераса.. Жилището е с локация ВЪЗРАЖДАНЕ 3 . Жилището се продава по БДС,като има опция за довършване до ключ,има опция за закупуване на външни паркоместа .Подходящ за отдаване под наем или за лично ползване. Сграда е тип ново строителство, с асансьор, контрол на достъпа, добре поддържани общи части.
Виж всички обяви в admiralres.bazar.bg или тук







