МЕСТОПОЛОЖЕНИЕ:Квартал Кършияка е един от най-големите и популярни квартали в град Пловдив.Кършияка е жилищен и търговски квартал, където може да се намерят множество жилищни сгради, магазини, ресторанти, кафенета, учебни заведения, паркове и други удобства.
СТРОИТЕЛСТВО: Апартаментът се намира на 6 етаж , тухла.
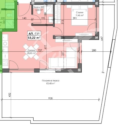
РАЗПРЕДЕЛЕНИЕ: Жилището разполага с площ от 131кв.м. разпределена в дневна с дневна с трапезария и кухненски бокс, спалня, баня с тоалетна, тераса, изба.
СЪСТОЯНИЕ: В строеж.
Заповядайте да Ви го покажем. Използвайки нашите услуги Вие ще превърнете закупуването на новия си дом в едно приятно изживяване, ще получите персонален консултант, съдействие при кандидатстване за кредит от всички банки в България, интериорни дизайнери и екип, който да се погрижи за нужните документи по Вашата сделка. На Ваше разположение сме всеки ден, от понеделник до неделя от 09:00 до 20:00ч. Възползвайте се от безплатна консултация в наш офис, където ще ви спестим време и ще ви запознаем с всички актуални имоти в България, отговарящи на Вашето търсене. Свържете се с нас на 0887779990 /на цената на един градски разговор/ или на 0884060990 и цитирайте кода към имота:403-14661
Виж всички обяви в xnvd_plovdiv.bazar.bg или тук







