МЕСТОПОЛОЖЕНИЕ:Тракия предлага приятни зелени площи, паркове, които са подходящи за разходки и отдих. В квартала има добре развита инфраструктура, която включва удобен транспорт, училища, детски градини, спортни съоръжения и медицински заведения.
СТРОИТЕЛСТВО: Разположен на 6-ти етаж в сграда с модерен дизайн, построена през 2024 година. Апартаментът впечатлява със светлина и пространство с панорамни гледки.
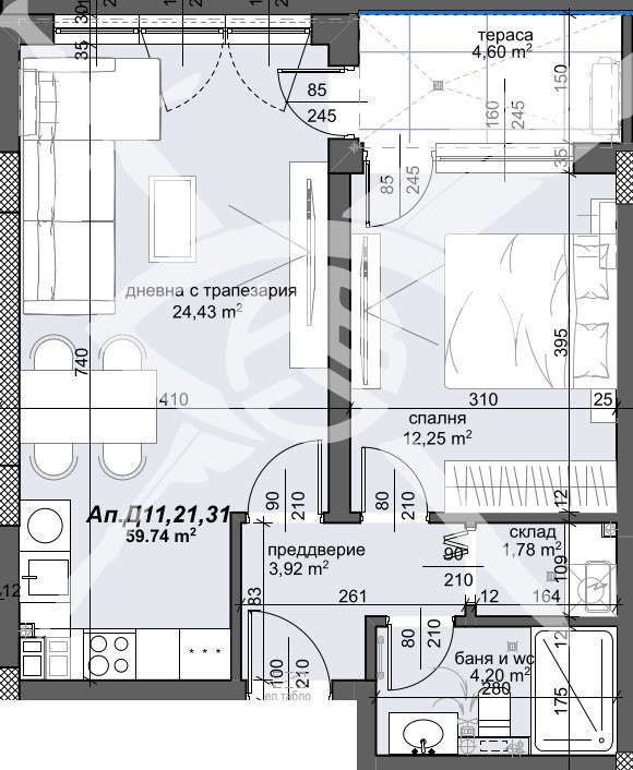
РАЗПРЕДЕЛЕНИЕ: Жилището разполага с площ от 70 кв.м., състои се от дневна с трапезария, спалня, баня,тоалетна , тераса.
СЪСТОЯНИЕ: Жилището се предлага на шпакловка и замазка, което дава възможност на новите собственици да създадат своя нов ДОМ, придавайки му индивидуалност и стил.
Заповядайте да Ви го покажем. Използвайки нашите услуги Вие ще превърнете закупуването на новия си дом в едно приятно изживяване, ще получите персонален консултант, съдействие при кандидатстване за кредит от всички банки в България, интериорни дизайнери и екип, който да се погрижи за нужните документи по Вашата сделка. На Ваше разположение сме всеки ден, от понеделник до неделя от 09:00 до 20:00ч. Възползвайте се от безплатна консултация в наш офис, където ще ви спестим време и ще ви запознаем с всички актуални имоти в България, отговарящи на Вашето търсене. Свържете се с нас на 088777990 или на 0884060990 и цитирайте кода към имота:435-18074
Виж всички обяви в xnvd_plovdiv.bazar.bg или тук







