VIP Residence HAYAT - ЖИЛИЩЕН КОМПЛЕКС С МОДЕРЕН ДИЗАЙН, изцяло заграден, с контролиран достъп , ВКЛЮЧВАЩ ДВЕ ЖИЛИЩНИ СГРАДИ с магазин, вътрешен детски кът, външни детски площадки, БАРБЕКЮТА със зелена поляна, гаражи и външни паркоместа!!!!Газифициран!
VIP Residence HAYAT - се отличава с високо ниво на изпълнение и качество във всеки детайл. Ако търсите уют , сигурност, спокойствие и свеж въздух, съчетани с модерен стил и висок стандарт, това е Вашия избор!!!!
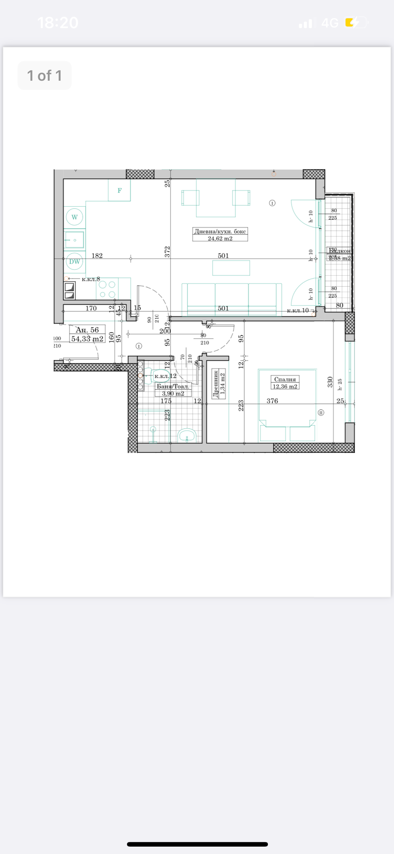
Строително - инвестиционна компания Гранд Билдстрой ЕООД, предлага за продажба двустает апартамент в новостроящ се комплекс VIP Residence HAYAT . Разположен на втори жилищен етаж в Секция А, с гледка към планината. Апартаментът се състои от функционална дневна с кухненски бокс , спалня, антре, баня с тоалетна, и тераса. Жилището е с обща площ 62,36 кв.м., от които 8,03 кв.м. са общи части от сградата.
Апартаментът се издава съгласно БДС. Вътрешни стени и тавани - гипсова мазилка BAUMIT ;
Стени на мокри помещения варо-циментова мазилка BAUMIT;
Под циментова замазка;
Положена ВиК инсталация на тапи;
Положена ел. инсталация с монтирани ключове и контакти;
Газификация на апартамента и отоплителна инсталация ;
Под на тераса -гранитогрес;
Входна врата блиндирана с 70мм крило;
Дограма произведена в Германия от KÖMMERLING с немски обков ,тройни стъклопакети с най-високи шумо и топлоизолационни качества.
Изпълнена и монтирана видео-домофонна система;
Покрив - Плосък покрив, топло, паро и хидроизолиран.
Висококачествените и енергоспестяващи материали използвани в сградата осигуряват, както комфорта така и максимално намаляване на месечните разходи за ток и отопление. За удобството на живущите, сградата ще бъде газифицирана.
При желание от Ваша страна апартамента може да бъде завършен до ключ!
'ГРАНД БИЛДСТРОЙ' ЕООД е МОДЕРНА ФИРМА ОТГОВАРЯЩА НА СЪВРЕМЕННИТЕ ИЗИСКВАНИ ЗА КАЧЕСТВО И ДИЗАЙН.
ФИРМАТА СЕ НАЛАГА КАТО НАДЕЖДЕН ПАРТНЬОР!!! Тел:0895 83 87 84
Виж всички обяви в ralitsahristova.bazar.bg или тук







