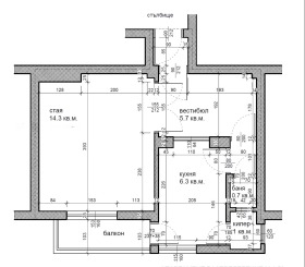
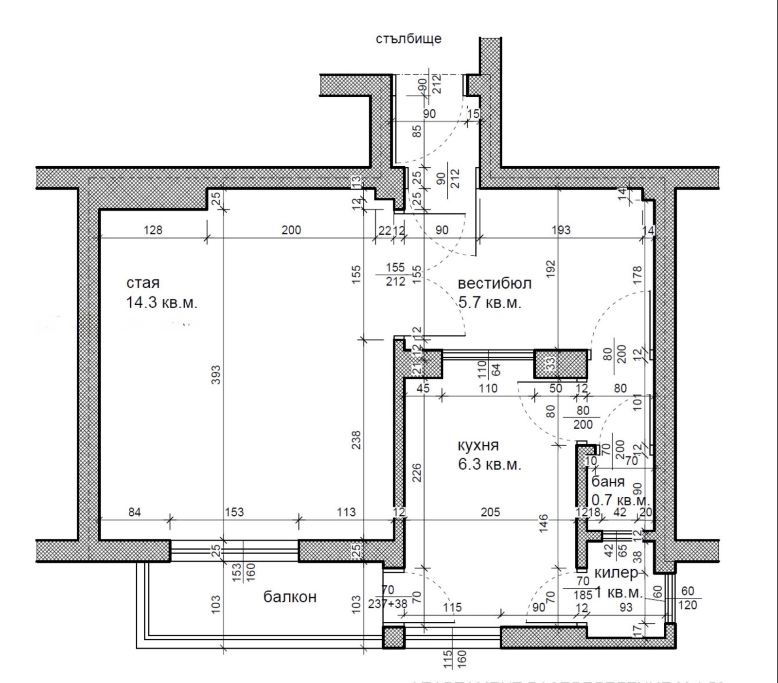
Апартаментът е на четвърти етаж в малка вътрешна монолитна кооперация, без асансьор, на тихо и спокойно място. Изложението е югоизточно, което го прави светъл и топъл.
Разпределението включва: входно антре, вестибюл с горно осветление, кухня с балкон, голяма стая, коридорче и WC с ръчен душ. Към кухнята има малко килерче с мивка и прозорче. Височината на таваните е 3 метра. Настилките са различни дюшеме, мозайка, керамични плочки и балатум. Жилището позволява преустройство и модернизиране по желание на новия собственик.
Към имота се включват мазе (5.36 кв.м.), таван (6.68 кв.м.) и идеални части от земята. Продава се със старото обзавеждане. Отоплението е на ток.
Виж всички обяви в sofiaproperty.bazar.bg или тук



