Възможност за закупуване на покрито паркомясто на цена 18 000
Отлична Локация: Имота се намира в един от най-предпочитаните за живеене и инвестиция райони на град София, кв. Горна Баня - 10 минути пешеходно разстояние от метростанция Горна Баня, 5 минути до 53 ОУ Николай Хрелков , 4 минути до парк Горна Баня, в непосредтвена близост до главни пътни артерии, училища, детски градини, автобусни спирки, детски площадки, аптеки и др.
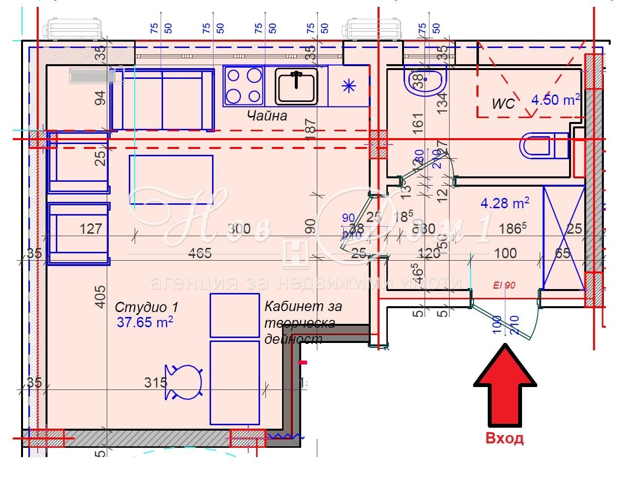
Състояние: Имотът се издава съгласно БДС Екстериорна блиндирана врата. Под : нивелирана замазка подготвена за полагане на гранитогрес, паркет или настилка по Ваш избор. Стени : машинно обработена гипсова мазилка с турбозол подготвена за боя или тапет по ваш избор. Мокри Помещения : ръчно обработена циментова мазилка подготвена за полагане на фаянс и теракота. ВиК инсталация на тапа . ЕЛ инсталация : контакти, ключ и фасонки. Монтирани алуминиеви радиатори и ПВЦ дограма 'REHAU'. Отопление Електричество!
Забележка : Приложените по-горе описания, снимки, скици, архитектурни разпределения и визуализации имат за цел да Ви дадат максимално добра и идейна представа за общия вид и разпределението на имота ! Горепосочените са предоставени и одобрени от собственика, същите са публикувани с неговото съгласие ! Имотът се издава пригоден за живеене и е със статут на 'Студио', което го прави идеален за инвестиция и отдаване под наем !
НОВ ДОМ 1 : Компанията разполага с : Юридически Отдел - извършващ всички необходими юридически и технически проверки на имота, организира всички етапи на сделката до нейното финализиране с нотариално прехвърляне на имота. Кредитен Отдел - съдействащ за отпускане на банков кредит при възможно най-добри условия за клиента, като избора на банка се определя спрямо нуждите и възможностите на клиента. Строително-Ремонтен Отдел - гарантиращ при нужда цялостен ремонт на вашето жилище до ключ при най-изгодни условия и цени.
Консултант Недвижими Имоти : Димитър Петров 0895 501 006
Виж всички обяви в novdom1sf.bazar.bg или тук



