SG Estates Bulgaria предлага едностаен апартамент в сграда пред АКТ 14 в района на Тракия.
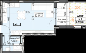
📐Функционално и добре организирано вътрешно пространство, което включва:
- просторна дневна с кухненски бокс и трапезария
- баня с тоалетна
- веранда и озеленен двор
✅С възможност за закупуване на паркомясто или гараж.
📍 Локация: В комуникативен район, близо до търговски центрове, училища, детски градини, паркове и удобен градски транспорт.
При покупка на имот с SG Estates Bulgaria, получавате не просто посредник, а квалифициран партньор. Като лицензиран кредитен консултант към CreditCenter, ние ще Ви съдействаме да намерите най-доброто финансиране - лесно, сигурно и изцяло в синхрон с Вашите нужди. Нашият екип е обучен, сертифициран и ежедневно усъвършенства уменията си, за да Ви предложи най-високо ниво на професионализъм. Членството ни в НСНИ / Национално сдружение Недвижими Имоти / е допълнителна гаранция за качество, етика и доверие в процеса на всяка сделка.
📞 Свържете се с нас за повече информация или оглед.
Оферта 1
Виж всички обяви в sgestates.bazar.bg или тук







