Върху парцел с площ 6141 кв.м., е проектиран съвременен жилищен комплекс, състоящ се от три сгради с хармонична архитектура и модерна визия.
Комплексът предлага оптимален баланс между застрояване и природа над 2177 кв.м. са предвидени за озеленяване, като зелените площи са разпределени в паркови кътове за отдих, детска площадка и богато озеленени алеи.
Най-бързо развиващият се столичен квартал Малинова долина, със сравнително ниска гъстота на застрояване , което дава усещане за повече пространство. Намира се в подножието на Витоша, което осигурява чист въздух и красива гледка. В близост са бул. Симеоновско шосе и Околовръстния път, което улеснява достъпа както до центъра, така и до изходите на София.
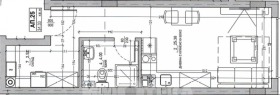
Трите сгради са с нискоетажно застрояване, което създава усещане за простор и комфорт. Всяка сграда разполага с подземни и надземни паркоместа, а жилищата са проектирани с функционални разпределения и големи прозорци, осигуряващи естествена светлина и гледки към Витоша.
Планирано развитие новият ПУП ще въведе ред в уличната мрежа, инфраструктурата и регулацията на имотите. Това означава по-добри улици, зелени площи и канализация, вместо хаотично строителство.
Обади се сега и цитирай този код 668856
Виж всички обяви в imoteka.bazar.bg или тук







