ЦЕНА НА ИНВЕСТИТОР !!!
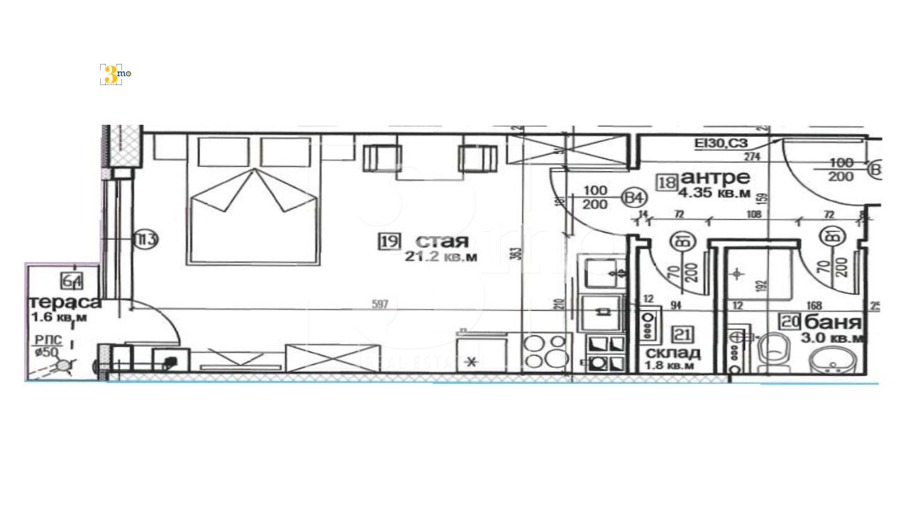
'3mo' недвижими имоти продава едностаен апартамент с обща площ от 47 кв.м., от които 38 кв.м. застроена площ. Разположен е на трети надпартерен етаж в десететажна сграда. Състои се от входно антре, стая с кухненски бокс, баня с тоалетна , склад и тераса. Статута му е хотелски апартамент. Отоплението е на газ и ток.
На пешеходно разстояние се намират автобусни спирки, както и има бърз достъп до околовръстен път, посредством Симеоновско шосе.
Към момента сградата е преди Акт 14.
Очакван Акт 16 септември 2026г.
Оферта 10
Виж всички обяви в 3mo_academica.bazar.bg или тук
        
       
         
         
         
             
             
            






