Двустаен апартамент с чиста площ от 38 кв.м. в идеалния център. Близо до метро, трамваи, училище и Женския пазар.
Намира се на четвърти етаж, без асансьор в монолитна вътрешна кооперация на тихо място. Югоизточно изложение.
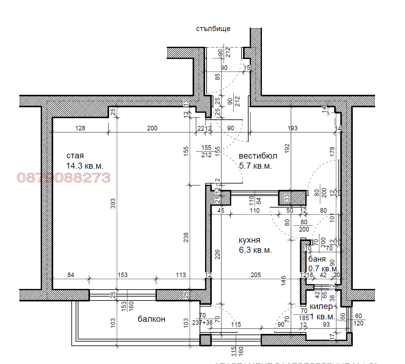
Разпределение: входно антре, вестибюл с горно осветление, кухня с балкон, голяма стая, коридорче, и WC с ръчен душ. Към кухнята има килерче с мивка и прозорче. Етажната височина е 3 метра. Настилките са монолитна мозайка, керамични плочки, дюшеме, балатум. Дава възможност за преустройство с което да придобие съвременен вид.
Към апартамента има идеални части от земя, мазе 5.36 кв. м. и таван 6.68 кв.м. Продава се със старо обзавеждане. Отоплява се на електричество.
Продажбата трябва да бъде извършена само с налични средства, без ползване на кредит.
Само за директни купувачи.
        
        
      
     
         
         
         
         
         
         
         
         
         
         
         
         
         
         
             
             
             
             
             
             
             
             
             
             
             
             
             
            






